Trinity College


 
Trudy Jacoby 
Visual Resources Collection
Trinity College 
Hallden Hall/300 Summit St 
Hartford, CT 06106-3100 
phone: (860) 297-2194
fax: (860) 297-2251
trudy.jacoby@trincoll.edu
http://www.trincoll.edu/~slide/

CLICK HERE TO RETURN TO INDEX


Please click on any of the thumbnails to view the larger image:

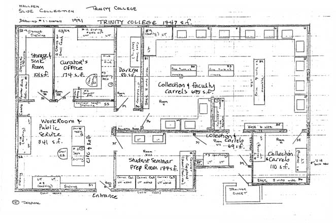
Plan

Circulation and reference

Circulation and reference

Collection and carrels

Slide stacks

Collection

Collection and carels

Faculty carrels

Storage and sink room

Curator's office

 

Student seminar prep room and copy stand

CLICK HERE TO RETURN TO INDEX